首页

乐有家小程序

注册登录即可查询小区最新成交价

立即打开
海公元
1/6
现场直拍 真实验证
实地勘察,检验服务
实地拍摄
小区及房源图片、视频、VR为现场实地拍摄,确保房源 信息真实有效。
房源信息详验
在乐有家委托且具备实地勘察条件的房源,乐有家会在7日内对房源做实地核验,包括但不限于在房源现场了解房屋结构、通风采光及噪音情况、有无重大质量问题、小区内外环境及周边配套设施等,帮助客户体验房源舒适度及宜居性。
房屋结构
通风情况
采光情况
噪音情况
质量情况
小区环境
关闭
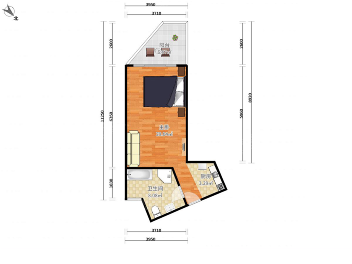
巽寮湾一线海景房出售收藏
  • 26万

    售价

  • 1室0厅1卫

    户型

  • 49.14m²

    面积

十大承诺、十大保障

帮您防控二手房交易风险了解详情

了解首付、月供及税费
地址: 巽寮村海滨公路下侧.
房源特色
满五年 红本在手 随时可看 有电梯 安静 人车分流 近公园 自带商超 商业综合体 楼盘地面花园
房源特色

房源小区环境优美,空气清新,周边配套设施齐全,生活方便,交通便利,业主诚意出售,下楼可到沙滩设施齐全

户型简介

房源户型方正,通透性好,通风好,采光佳.

装修描述

房源有装修出售,有家私家电,生活方便。.

了解更多房源特色
经纪人带看反馈
黄小花 5分

带看本房 1

[户型格局]: 该房源为1室0厅1卫1厨1阳的平层设计,建筑面积49.14㎡,完美利用空间,得房率高达98.80%。合理的户型能够充分满足单身人士或小家庭的居住需求。 [朝向/通风/采光]: 房屋朝向南,充足的自然采光让居住环境更加明亮,配合高楼层的优势,通风良好,室内空气流通,营造出清新宜人的居住氛围,是生活中的一大亮点。 [装修保养]: 本房源为豪华装修,室内设施一应俱全,包括空调、冰箱、热水器等,能够直接拎包入住,省去了装修和购置家具的烦恼,生活品质迅速提升。 [周边配套]: 小区附近购物便利,五公里内有多个超市和便利店,满足日常生活需求。此外,作为半开放式小区,绿化率高,适合家庭及养老居住。 [景观/视野]: 住在高楼层,无论清晨或傍晚,均可欣赏到一线海景,仿佛置身度假村,每日都能享受宁静而壮观的海洋景观,令人陶醉。 [交易优势]: 房源产权清晰,适合首次置业或投资。低首付要求和较为灵活的交易流程,具有高流动性,买家可以更轻松地实现置业目标。

房源信息有误?点此举报,假一赔100元!

房号:S9673009

责任分行:H金融街三分行

举报该房源

免责声明

1.房源信息所示的户型图、房屋用途、建成年代、产权年限、建筑结构等信息仅供参考,购房时请以房产证信息为准。

2.房源的周边配套、交通规划、绿化率、得房率、容积率等信息来源于房产证、实勘、政府官网等渠道,不排除因政府规划、政策规定等原因而发生变化,仅供参考。

3.搜索结果仅为该学校地理位置上的周边房源,位置相关信息来源于百度地图,仅供参考。学校位置、招生区域划定等信息存在不确定或调整的可能,乐有家及本网站不对此做出任何承诺,须以政府教育主管部门及学校的最新政策为准。

4.带看房源反馈内容为我司经纪人实地带看后的及时信息反馈,实际房源信息以个人实地带看及产证信息为准;小区问答中提问内容为用户自发,不代表我司观点。

龙寿波

4.8分

电话咨询 在线咨询
最新底价,马上了解
1/6

关闭
联系经纪人
呼叫
推荐在wifi下浏览VR以节省流量
确定浏览
推荐在wifi下播放视频以节省流量
确定浏览
收藏成功

随时查看收藏房源,关注房源信息动态

下载乐有家APP 关闭
房屋总价
贷款类型
首付成数
公积金贷款
贷款年限
还款方式
等额本息 每月偿还相同数额的贷款(包括本金和利息),便于借款人合理安排每月的家庭收入支出和进行理财 等额本金 每月偿还相同数额的本金和剩余贷款在该月所产生的利息,起初还款压力较大,但随着时间推移,利息越来越少,每月还款数也越来越少
商贷利率 (基准利率) %
公积金利率 (基准利率) %
重置

温馨提示

您当前正在访问移动端网页,推荐使用移动设备(手机/平板)扫码浏览,或访问PC端页面
扫上方二维码下载乐有家APP,海量真房源随时看
仍然直接访问
Title